A PHP Error was encountered
Severity: Notice
Message: session_start(): A session had already been started - ignoring
Filename: browse-homes/home-details.php
Line Number: 44
Backtrace:
File: /home/paradepass/clients/dev/application/views/global/dynamic/browse-homes/home-details.php
Line: 44
Function: session_start
File: /home/paradepass/clients/dev/application/views/default/layouts/page_main.php
Line: 109
Function: require
File: /home/paradepass/clients/dev/application/core/CMS_Controller.php
Line: 87
Function: view
File: /home/paradepass/clients/dev/application/core/CMS_Controller.php
Line: 123
Function: loadView
20146 64th Ave, Chippewa Falls Wisconsin 54729
Ashley Construction
- Adam Ashley
- (715) 271-6504
- Visit Website
Home Highlights
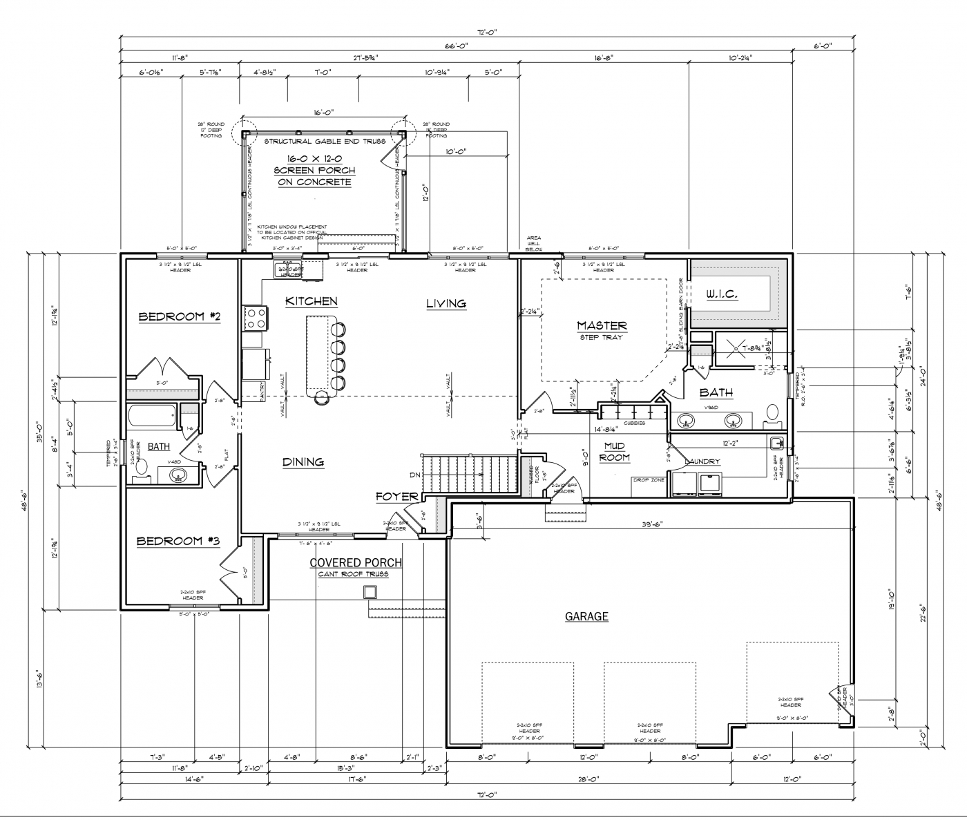
This Ashley Construction 2020 Parade Home is located in the Lemay development in rural Chippewa Falls, near Lake Wissota. This 3,304 square foot ranch home has a finished basement, four bedrooms, three bathrooms, and a large family room in the basement that gives you a large amount of living space!! The decorative concrete on the covered front porch and rear screened-in porch look amazing. Check out more Ashley Construction homes and available one acre lots in their Lemay development!!
Special Features
- Decorative concrete
- Covered porch
- Vaulted ceilings
- Custom cabinets
- Three car garage
- Finished basement
- Lockers/cubbies
- Screened in porch
Reason To Tour This Home:
This is a great home with nice finishes at a reasonable price in a brand new development!!
- Square Feet: 3304
- Bedrooms: 4
- Bathrooms: 3
- Category: Category II - $275,000 - $449,999 (Does not include lot, landscaping, or well/septic.)
- Price: $2,147,483,647
Subcontractors
Advanced Engineering Concepts LLC
Address: 1360 International Dr, Eau Claire 54701
Phone: (715) 552-0330
Website: https://www.aec.engineering/
Email: info@aec.engineering
Bed, Bath & Drapery Shop
Address: 3475 E Hamilton Ave, Eau Claire 54701
Phone: (715) 839-9000
Website: http://www.bedbathanddrapery.com
Email: bbds1@bedbathanddrapery.com
Beyond Closets, LLC
Address: E3615 Aspen Rd, Eleva 54738
Phone: (715) 271-0663
Website: http://www.beyondclosetsllc.com
Email: beyondclosets@charter.net
C.V. Electric, LLC
Address: 1501 Green View Dr, Chippewa Falls 54729
Phone: (715) 828-4005
Email: cvelectric3@yahoo.com
Cesspool Cleaner Company & Portable Toilet Rentals, LLC
Address: 3153 118th St, Chippewa Falls 54729
Phone: (715) 723-3449
Website: http://www.cesspoolcleaners.com
Email: troyd@cesspoolcleaners.net
Cloverbelt Construction LLC
Address: 2515 250th St, Cadott 54727
Phone: (715) 289-4098
Website: http://cloverbeltconstructionwi.com/
Email: spaeth5@centurylink.net
Denny's Appliance
Address: 1701 Stout Rd Ste B, Menomonie 54751
Phone: (715) 235-2028
Website: http://www.dennysappliance.net
Fireside Hearth & Home
Address: 2540 S Hastings Way, Eau Claire 54701
Phone: (715) 832-5232
Website: http://www.wisconsinfireplace.com
Gannon Cleaning
Address: 1447 Loffler Ct, Chippewa Falls 54729
Phone: (715) 225-7851
Gene's Heating & Cooling LLC
Address: 9980 County Road Ss, Bloomer 54724
Phone: (715) 568-2455
Website: http://www.genesheatandac.com
Email: zach@genesheatandac.com
Gibson's WaterCare Service
Address: 620 N Hillcrest Parkway, Altoona 54720
Phone: (715) 834-7716
Website: http://www.gibsonswatercare.com
Email: joe@gibsonswatercare.com
Home Town Insulation
Address: 4711 Anderson Dr, Eau Claire 54703
Phone: (715) 833-8562
Website: http://www.hometowninsulation.com
Email: dave@hometowninsulation.com
Indianhead Insurance Agency
Address: 125 W Lincoln Street, Augusta 54722
Phone: (715) 286-2700
Website: http://www.indianhead-insurance.com/
Irra-Gator
Address: 6427 Markgraff Road, Fall Creek 54742
Phone: (715) 214-6640
Website: http://www.Irra-Gator.com
Email: ASather@Irra-Gator.com
Kristy Thiess, Your Real Estate Guide
Address: 4260 Southtowne Dr, Eau Claire 54701
Phone: (715) 379-4125
L&W Supply
Address: 3603 Hogarth Street, Eau Claire 54703
Phone: (715) 832-6650
Website: http://www.lwsupply.com
Email: brian.buresh@lwsupply.com
Liberty Exteriors Inc
Address: 855 Industrial Dr, Mondovi 54755
Phone: (715) 926-4444
Website: http://www.libertyexteriorsinc.com
Lyman Lumber Company
Address: 1700 Western Ave, Eau Claire 54703
Phone: (715) 835-5119
Website: http://www.lymanlumber-wi.com
M&M Plumbing
Address: 9897 172nd St, Chippewa Falls 54729
Phone: (715) 579-6543
Email: 2015mmplumbing@gmail.com
Northwestern Bank
Address: 202 N Bridge St, Chippewa Falls 54729
Phone: (715) 723-4461
Website: http://www.northwesternbank.com
Email: janej@northwesternbank.com
Oium Asphalt Paving
Address: 26172 West Mondovi St, Eleva 54738
Phone: (715) 287-4678
Website: http://oiumblacktop.net/
Email: oiumblacktop@tcc.coop
Over The Top Garage Doors
Address: E7246 County Highway S, Wheeler 54772
Phone: (715) 456-6510
Email: dwolfe12@hotmail.com
Pahl's Designer Showrooms
Address: 2650 Western Ave, Eau Claire 54703
Phone: (715) 552-3225
Website: http://www.PahlsShowrooms.com
Email: melody@jhlarson.com
Real Land Surveying
Address: 1360 International Dr, Eau Claire 54701
Phone: (715) 514-4116
Website: https://www.rls-aec.com/
Email: info@rls-aec.com
Red Wing Custom Cabinets & Flooring LLC
Address: 604 E Murray St, Boyd 54726
Phone: (715) 667-3008
SDR Painting LLC
Address: 3048 N 50th Ave, Chippewa Falls 54729
Phone: (715) 830-0516
Email: sdrpainting@gmail.com
Sherwin Williams
Address: 1427 S Hastings Way, Eau Claire 54701
Phone: (715) 835-4323
Website: http://www.sherwin.com
Email: sw3221@sherwin.com
Sound Installations
Address: 13198 42nd Ave, Chippewa Falls 54729
Phone: (715) 831-6029
Website: http://www.soundinstallationsinc.com
Spin Vision
Address: 409 Main Street Suite 4, Eau Claire 54701
Phone: (715) 513-9339
Website: http://www.spinvision.com
Email: tours@spinvision.com
StuveXT
Address: 20446 Cty Hwy O, Cadott 54727
Phone: (715) 829-5550
Email: stuvext@gmail.com
Third Chapter Designs
Address: P.o. Box 2186, Eau Claire 54702
Phone: (715) 864-6323
Website: http://www.thirdchapterdesigns.com
Vinopal Title and Abstract
Address: 1030 Regis Ct, Eau Claire 54701
Phone: (715) 831-0880
Website: http://www.vinopaltitle.com
Email: john@vinopaltitle.com
Willmarth Well Drilling and Pump Service
Address: 29347 295th Street, Holcombe 54745
Phone: (715) 828-4336
Website: http://www.willmarthwellandpump.com
Xcel Energy
Address: Po Box 8, Eau Claire 54702
Phone: (715) 737-2627
Website: http://www.xcelenergy.com
